2D-3D Playa Del Rey Project.

Small Mini-Yards. Blank Canvas. Big Dreams.

BEFORE PHOTO: Playa Del Rey Project - Waterfall Wall Dining Patio

BEFORE PHOTO: Playa Del Rey Project - Waterfall Wall Dining Patio

AFTER IMAGE: 2D-3D Hybrid - Playa Del Rey Project - Waterfall Wall Dining Patio - Paver Option 1 (Created for Belman Living)

AFTER IMAGE: 2D-3D Hybrid - Playa Del Rey Project - Waterfall Wall Dining Patio - Paver Option 3 (Created for Belman Living)

AFTER IMAGE: 2D-3D Hybrid - Playa Del Rey Project - Waterfall Wall Dining Patio - Paver Option 3 (Created for Belman Living)

AFTER IMAGE: 2D-3D Hybrid - Playa Del Rey Project - Waterfall Wall Dining Patio - Paver Option 3 (Created for Belman Living)

AFTER IMAGE: 2D-3D Hybrid - Playa Del Rey Project - Waterfall Wall Dining Patio - Paver Option 4 (Created for Belman Living)

AFTER IMAGE: 2D-3D Hybrid - Playa Del Rey Project - Waterfall Wall Dining Patio - Paver Option 4 (Created for Belman Living)

AFTER IMAGE: 2D-3D Hybrid - Playa Del Rey Project - Waterfall Wall Dining Patio - Paver Option 5 (Created for Belman Living)

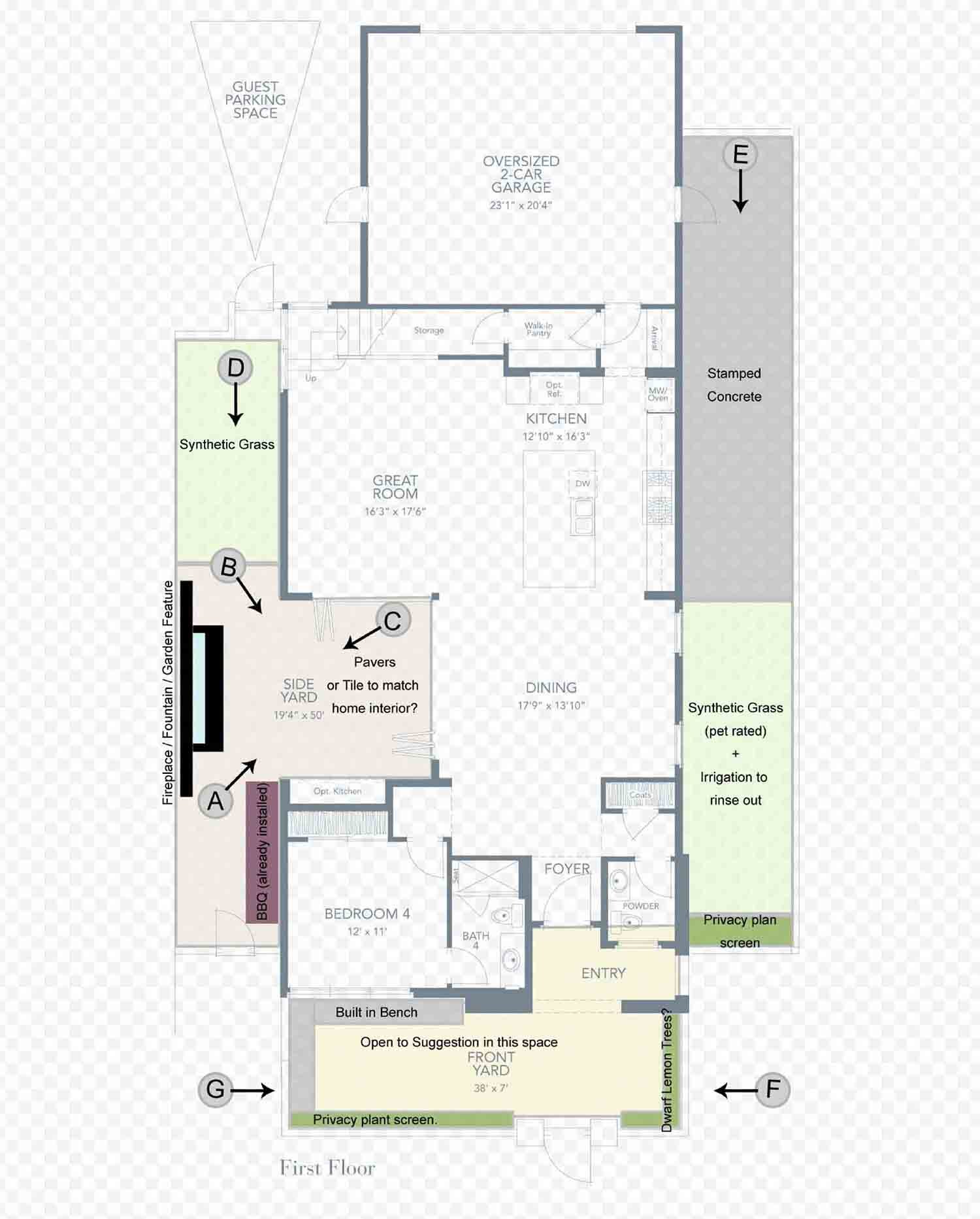
DESIGN PLAN PROVIDED: Playa Del Rey Whole House Mini-Yards Project

 

TBD.

BEFORE PHOTO: Playa Del Rey Project - Enclosed Front Patio

BEFORE PHOTO: Playa Del Rey Project - Enclosed Front Patio

AFTER IMAGE: 2D-3D Hybrid - Playa Del Rey Project - Enclosed Front Patio - Paver Option 1 (Created for Belman Living)

AFTER IMAGE: 2D-3D Hybrid - Playa Del Rey Project - Enclosed Front Patio - Paver Option 2 (Created for Belman Living)

AFTER IMAGE: 2D-3D Hybrid - Playa Del Rey Project - Enclosed Front Patio - Paver Option 2 (Created for Belman Living)

AFTER IMAGE: 2D-3D Hybrid - Playa Del Rey Project - Enclosed Front Patio - Paver Option 3 (Created for Belman Living)

AFTER IMAGE: 2D-3D Hybrid - Playa Del Rey Project - Enclosed Front Patio - Hardscape Only (Created for Belman Living)

AFTER IMAGE: 2D-3D Hybrid - Playa Del Rey Project - Enclosed Front Patio - Hardscape Only (Created for Belman Living)

AFTER IMAGE: 2D-3D Hybrid - Playa Del Rey Project - Enclosed Front Patio - Landscaped Planter Privacy Screen (Created for Belman Living)

AFTER IMAGE: 2D-3D Hybrid - Playa Del Rey Project - Enclosed Front Patio - Landscaped Planter Privacy Screen (Created for Belman Living)

BEFORE PHOTO: Playa Del Rey Project - Dining Patio Grass Area

BEFORE PHOTO: Playa Del Rey Project - Dining Patio Grass Area

AFTER IMAGE: 2D-3D Hybrid - Playa Del Rey Project - Dining Patio Grass Area - Paver Option 1 (Created for Belman Living)

AFTER IMAGE: 2D-3D Hybrid - Playa Del Rey Project - Dining Patio Grass Area - Paver Option 2 (Created for Belman Living)

AFTER IMAGE: 2D-3D Hybrid - Playa Del Rey Project - Dining Patio Grass Area - Paver Option 2 (Created for Belman Living)

AFTER IMAGE: 2D-3D Hybrid - Playa Del Rey Project - Dining Patio Grass Area - Paver Option 3 (Created for Belman Living)

AFTER IMAGE: 2D-3D Hybrid - Playa Del Rey Project - Dining Patio Grass Area - Paver Option 4 (Created for Belman Living)

AFTER IMAGE: 2D-3D Hybrid - Playa Del Rey Project - Dining Patio Grass Area - Paver Option 4 (Created for Belman Living)

AFTER IMAGE: 2D-3D Hybrid - Playa Del Rey Project - Dining Patio Grass Area - Paver Option 5 (Created for Belman Living)

BEFORE PHOTO: Playa Del Rey Project - Pet Patio & Grass Area

BEFORE PHOTO: Playa Del Rey Project - Pet Patio & Grass Area

AFTER IMAGE: 2D-3D Hybrid - Playa Del Rey Project - Pet Patio & Grass Area (Created for Belman Living)

AFTER IMAGE: 2D-3D Hybrid - Playa Del Rey Project - Pet Patio & Grass Area (Created for Belman Living)